M_8470_Метеоплощадка

Добавить в избранное
11_Зеленый_Желтый_Красный_Серый
  • Стоимость: по запросу
Характеристики
  • Производитель:
  • Артикул: M_8470
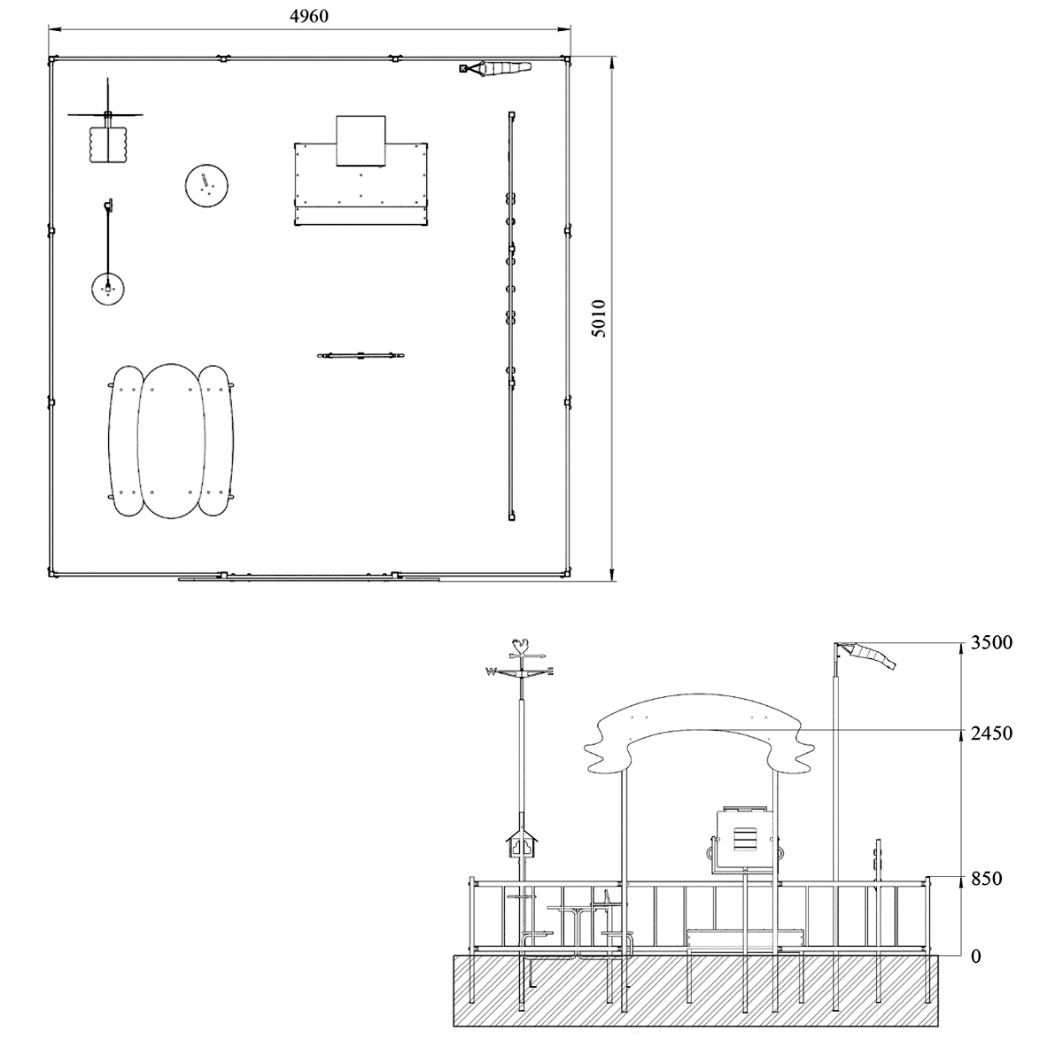
  • Габаритные размеры: 4960x4960x3500 мм
  • Возрастная группа: от 3 лет
Описание
Характеристики

Метеоплощадка должна состоять из входной арки,  ограждений по периметру и игровых образовательных элементов. В центре площадки расположены:  столик со скамьями, солнечные часы, линейка для измерения снежного покрова, мерзлометр, гололедный станок, флюгер в виде петушка, кормушка для птиц, панель "Времена года", панель "Календарь погоды", панель "Доска для рисования",  стойки игровых панелей, ветровой рукав, метебудка с термометром и барометром, подиум для метебудки, стенд "Ловец облаков", может находиться осадкомер. Периметр площадки состоит из металлического ограждения в виде заборчика и входной арки и стоек для ограждений.

     Стол со скамьями размером 1480x1190x575, должен представлять собой устойчивую конструкцию, предназначенную для отдыха на открытом воздухе и состоять из каркаса,  овальной столешницы, 2-х овальных сидений.  Каркас должен быть выполнен из металлической трубы диаметром не менее 26 мм., окрашенной порошковой краской. Столешница и сиденья должны быть выполнены из водостойкой окрашенной фанеры, толщиной не менее 21 мм..  Места резьбовых соединений должны быть  закрыты  пластиковыми заглушками. Столик бктонируется с испоьзованием закладных деталей.

    Игровая панель "Календарь природы" должна быть выполнена из влагостойкой окрашенной фанеры, толщиной не менее 21 мм. Размер 1240х21х610 мм. На панель нанесено изображение круга, позволяющее ознакомить детей с цикличностью  пор года, месяцами, а так же изменениями в природе, происходящими в зависимости от времени года, на круге имеется стрелка, с помощью которой дети отмечают сезоны. На панель прикреплен вращающийся круг, знакомящий с понятиями "вчера", "сегодня", "завтра",  нанесен круг, дополненный стрелкой, позволяющий отмечать  дни недели. Имеется круг с вращающейся стрелкой, на котором отмечается "утро", "день", "вечер", "ночь", так же на панель нанесены 4 изображения, характерные для частей суток, 12 изображений, характерных для  месяцев,   и 8 изображений, характерных для различных  фаз луны. К данным изображениям ведут прорези, по которым перемещаются бегунки, позволяющие отметить выбранные значения. Панель устанавливается на стойки размером 90х40х1200 мм, выполненные из металлической профильной трубы сечением не менее 40х40 мм. К стойкам приварены фланцы для крепления  панели, выполненные из металлической пластины толщиной не менее 3мм. При монтаже стойки бетонируются в земле. Места резьбовых соединений закрыты  пластиковыми заглушками.  Верхние основания стоек  закрыты пластиковыми крышками.

    Игровая панель "Календарь погоды", размером 1240х21х610 мм.,   должна быть выполнена из влагостойкой фанеры толщиной не менее 21 мм с нанесенными схематическими изображениями, к которым ведут дорожки - прорези с перемещающимися по ним бегунками. Схематические изображения  позволяют  отмечать: облачность (3 состояния), осадки (4 вида), температуру (4 состояния), силу ветра (4 состояния), явления природы (7 видов). Панель устанавливается на стойки размером 90х40х1200 мм, выполненные из металлической профильной трубы сечением не менее 40х40 мм. К стойкам приварены фланцы для крепления  панели, выполненные из металлической пластины толщиной не менее 3мм. При монтаже стойки бетонируются в земле. Места резьбовых соединений закрыты  пластиковыми заглушками.  Верхние основания стоек  закрыты пластиковыми крышками.

     Игровая панель "Доска для рисования" размером 1240х21х610 мм.,  должна быть выполнена из влагостойкой фанеры толщиной не менее 21 мм с имитацией школьной доски. Панель устанавливается на стойки размером 90х40х1200 мм, выполненные из металлической профильной трубы сечением не менее 40х40 мм. К стойкам приварены фланцы для крепления  панели, выполненные из металлической пластины толщиной не менее 3мм. При монтаже стойки бетонируются в земле. Места резьбовых соединений закрыты  пластиковыми заглушками.  Верхние основания стоек  закрыты пластиковыми крышками.

      "Ловец облаков" размером 824х50х1365,   должен состоять из фанерного стенда с прорезью в виде квадратного окна,  металлической рамы и металлической стойки. Стенд должен быть выполнен из водостойкой фанеры толщиной не менее 21 мм., с изображением 7 видов облаков. Стойка высотой не менее 1200 мм должна быть выполнена из металлической трубы 50х50 мм. Металическая рама должна быть выполнена из трубы 40х40 мм и оснащена ручками для вращенияя.  Угол вращения в горизонтальной плоскости 180 градусов, в вертикальной 90 градусов. Места резьбовых соединений закрыты  пластиковыми заглушками.  Верхние основания стоек  закрыты пластиковыми крышками. Стойка бетонируется в земле. 

    Солнечные часы размером 400х400х650 представляют собой циферблат, выполненный из окрашенной влагостойкой фанеры толщиной не менее 21 мм с гномоном, выполненным из влагостойкой фанеры толщиной не менее 15 мм. Циферблат расположен на стойке выполненной из металлической профильной трубы сечением не менее 40х40мм с приваренными фланцами выполненными из металлической пластины толщиной не мене 3мм, которые крепятся к циферблату и металлической пластине круглой формы диаметром не менее 150мм и толщиной не менее 4мм которая служит для фиксации изделия. Стойка часов бетонируется в земле.

     Комплекс "Мерзлометр" размером 980х200х1509 с прикреплённой к нему линейкой для измерения снежного покрова состоит  из 2-х стоек,   из металлической профильной трубы сечением не менее 40х40мм., окрашенной порошковыми красками. Между стойками натянут трос 5 мм., выполняющий роль мерзлометра. Линейка из влагостойкой окрашенной фанеры.  Места резьбовых соединений закрыты  пластиковыми заглушками.  Верхние основания стоек  закрыты пластиковыми крышками. Стойки бетонируются в земле.

     Метеобудка размером 450х467х1815, состоит из шкафчика,  выполненного из влагостойкой фанеры толщиной не менее 9 мм, несущего каркаса шкафчика,  из бруса сечением не менее 30х50мм. Дверца крепится на две петли. Внутри шкафчика установлены термогигрометр и барометр (либо термометр, барометр и гигрометр, либо прибор 3 в 1). Шкафчик устанавливается на опорную стойку,  из металлической профильной трубы сечением не менее 40х40мм и высотой не менее 1700 мм, с приваренным к ней фланцем  для крепления к подиуму. Фланец  выполнен из металлической пластины толщиной не мене 4мм.  К стойке приварена металлическая пластина круглой формы диаметром не менее 150мм и толщиной не менее 4мм, предназначенная т для крепления стойки к шкафчику.

     Подиум для метеобудки  размером 1250х908х365, выполнен из водостойкой противоскользящей фанеры толщиной не менее 21 мм и каркаса,  из металлической профильной трубы сечением не менее 30х30 мм, окрашенной порошковыми красками. Основа каркаса выполнена из металлической профильной трубы сечением не менее 50х25 мм. Каркас бетонируется в земле.

     Металлический флюгер в виде петушка крепится на пик стойки  из металлической трубы, окрашенной порошковыми красками. Стойка выполнена из металлической профильной трубы сечением не менее 50х50мм. К стойке приварен кронштейн,  из металлической профильной трубы сечением не менее 50х25мм с приваренной к ней металлической пластиной толщиной не мене 3мм для установки кормушки для птиц. Флюгер свободно вращается под воздействием ветра. Размер изделия 284х50х3500 мм. Изделие бетонируется в земле.

     Ветровой рукав крепится при помощи карабина на пик стойки выполненный из металлической профильной трубы сечением не менее 50х50мм., окрашенной порошковыми красками. Рукав свободно вращается под воздействием ветра. Размер изделия 284х50х3200 мм. Изделие бетонируется в земле.

     Ограждение по периметру площадки должно быть выполнено из металлических продольных элементов сечением не менее 50х25мм и вертикального заполнения из труб диаметром не менее 21 мм. Стойки для ограждений из металлической профильной трубы сечением не менее 40х40 мм. С приваренными фланцами для крепления пролетов огражения. Размер пролетов 1600х25х750 мм. Количество пролетов 11 штук. Размер угловых стоек ограждения  90х90х860 мм, количество угловых стоек ограждения 4 штуки. Размер промежуточных  стоек ограждения  90х90х860 мм, количество промежуточных стоек ограждения 6 штук. Пролеты надежно крепятся к стойкам с помощью болтов, закрытых пластиковыми заглушками. Стойки ограждения бетонируются в земле. 

     Входная арка в виде геральдической ленты размером 2480x120x2900 мм, выполнена из водостойкой окрашенной фанеры толщиной не менее 21 мм. Арка должна устанавливаться  на 2-х стойках из металлической профильной трубы сечением не менее 50х50 мм. Между стойками имеется  направляющая металлическая профильная труба 50х25 мм. Стойки бетонируются в земле.

     

  • Артикул: M_8470
  • Габаритные размеры: 4960x4960x3500 мм
  • Возрастная группа: от 3 лет